Burgemeester Michelsstraat 12
5591 EM, HEEZE
Deze uitgebouwde twee-onder-één kapwoning is in 2021/2022 vrijwel volledig gerenoveerd.
De woning is o.a. voorzien van een luxe keuken, sanitair en badkamer. De woning is voorzien van een energielabel B (geldig tot 27-06-2035). Verder beschikt de woning over een vrijstaande garage, carport, eigen oprit en een diepe achtertuin.
De woning is gelegen aan de mooie Burgemeester Michelsstraat in de wijk Weibossen, op 5 minuten lopen van het N.S.-station en sportpark Weibossen en tevens op loopafstand van het dorpscentrum van Heeze met al haar voorzieningen. Om de hoek is tevens een groen plantsoen met een speeltuintje gelegen. Binnen 10 minuten fietsen staat u op de Strabrechtse Heide maar ook de snelweg is snel te bereiken.
Bouwjaar: oorspronkelijk 1958
Woonoppervlakte: ca. 134 m2
Inhoud: ca. 482 m3
Perceel: 327 m2
Aanvaarding: in overleg
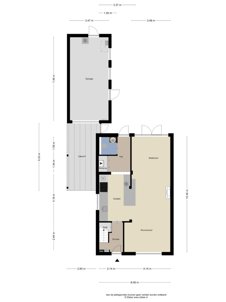
Indeling
Begane grond:
Nette voortuin met oprit en carport.
Entree, ruime hal, meterkast, en trapopgang met trapkast.
Directe toegang tot luxe keuken-opstelling. De keuken is voorzien van diverse inbouwapparatuur, te weten: “Boretti”-oven met inductie-kookplaat, afzuigkap, wijn-klimaatkast, koelkast, vriezer, vaatwasser, Quooker-kraan en combi-oven.
Directe toegang tot grote bijkeuken met vaste kastenwand en opstelling CV-ketel. Zeer royale luxe toiletruimte met hangend closet en wastafelmeubel. Deur naar achtertuin.
Ruime, uitgebouwde en lichte living van circa 40 m² met openslaande deuren naar de achtertuin.
De diepe achtertuin, gelegen op het noordwesten, is voorzien van een verhard terras met een grote zonneluifel, gazon, plantenborders en een buitenkraan. Achterin de tuin ligt een tweede verhard terras.
De ruime en geïsoleerde garage van circa 25 m² is voorzien van elektra en wateraansluiting, een smeerput en een elektrische garagedeur. Tevens bevindt zich hier een praktische vliering.
Eerste verdieping:
De ruime overloop biedt toegang tot twee ruime slaapkamers (mogelijkheid voor een 3e kamer), de badkamer en een separate wasruimte.
Slaapkamer 1, circa 13 m², is aan de voorzijde gelegen.
Slaapkamer 2, circa 20 m², is aan de achterzijde gelegen (voorheen in gebruik als 2 slaapkamers).
Kamer 3, thans in gebruik als inloopkast.
Luxe badkamer, voorzien van een hangend closet, semi-vrijstaand ligbad, inloopdouche met regendouche en handdouche, en een dubbele wastafel met verwarmde spiegel met inbouwverlichting. Alle kranen zijn ingebouwd en de badkamer is voorzien van vloerverwarming.
Wasruimte met aansluitingen voor de was-apparatuur.
Tweede verdieping:
Via een vlizotrap is de bergzolder te bereiken.
Bijzonderheden:
– De woning is voorzien van dakisolatie alsmede kunststof kozijnen met dubbele beglazing
– De woning is in 2024 voorzien van spouwmuur-isolatie
– De gehele begane grond is voorzien van een geïsoleerde betonvloer met vloerverwarming en is afgewerkt met een PU Gietvloer
– De eerste verdieping is volledig voorzien van een laminaatvloer
– Alle electra is in 2022 vernieuwd
– De woning is deels voorzien van rolluiken
– Er is een zonneluifel aan de voor- én achterzijde aanwezig (electrisch bedienbaar), alsmede een luifel aan de zijgevel (handmatig bedienbaar)
Bankgarantie/waarborgsom:
Ter zekerheidsstelling van het nakomen van de verplichtingen van de koper, wordt in de koopovereenkomst altijd een bankgarantie/waarborgsom opgenomen.














































