Heilige Geeststraat 20
5611 HP, EINDHOVEN
Heilige Geeststraat 20A Eindhoven
Op unieke locatie gelegen, werkelijk TOP afgewerkt vooroorlogs pakhuis met monumentale voorgevel, gelegen in het stadscentrum, tussen het bruisende Wilhelminaplein en De Kleine Berg.
Indeling
Begane grond:
Royale hal met trapopgang en fraaie maatwerk kasten.
Luxe toiletruimte met wandcloset en fonteintje.
Lichte en ruime woonkamer in L-vorm met grote lichtstraat en deur naar buitenplaats. Deze sfeervolle woonkamer is fraai afgewerkt met een gladde betonvloer, strakke stucwerk wandafwerking, vaste kasten, luxe gashaard en wit balkenplafond.
Open keuken aan de achterzijde van de woning gesitueerd, met luxe inrichting in U-opstelling, voorzien van complete apparatuur, te weten: 5-pits gasfornuis met oven, afzuigkap, koelkast, vaatwasser en combi-magnetron.
Volledig ommuurde, kleine buitenplaats met antieke trap naar dakterras.
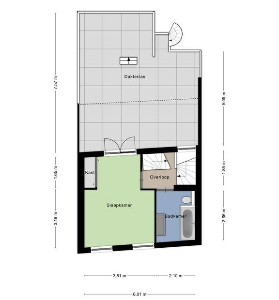
Eerste verdieping:
Overloop met toegang tot slaapkamer en badkamer.
Ruime slaapkamer met vaste kastenwand en terrasdeuren naar groot dakterras (ruim 40 m²).
Deze slaapkamer is afgewerkt met een fraaie houten vloer, strakke stucwerk wandafwerking en wit balkenplafond.
Luxe badkamer voorzien van ligbad/douchecombinatie met douche in bad met glazen scherm, wandcloset, badmeubel met dubbele wastafel, spiegelkast en tv-aansluiting
Uniek, royaal en prachtig groot dakterras (gedeeltelijk verhoogd) dat volledig is omheind en voorzien is van kunststof vlonders met terrasverwarming en buitenkeuken.
Tweede verdieping:
Vaste trap naar ruime verdieping met fraaie houten vloer en houten kapconstructie in het zicht. Overloop met de cv-kast met daarin opstelling cv-combiketel en hier zijn ook de aansluitingen voor was- en droogapparatuur aanwezig.
Royale slaapkamer met direct toegang door openslaande deuren naar tot 2e dakterras.
Bijzonderheden:
– Dit voormalige pakhuis is in 2007/2008 nagenoeg geheel opnieuw opgebouwd, de voorgevel is authentiek en de achtergevel is opnieuw bezet
– De bestaande slaapkamers zijn eventueel op te delen om meerdere slaapkamers te creëren
– Dakisolatie, vloerisolatie en dubbele beglazing aanwezig
– Gehele begane grond is voorzien van een betonvloer met vloerverwarming
– Deze woning staat op de gemeentelijke monumentenlijst van de gemeente Eindhoven, vanwege de karakteristieke voorgevel


































































